Zu Verkaufen €699.000 - Doppelhaushälfte
Objektbeschreibung
In ruhiger und idyllischer Lage von Poppenbüttel, entstehen vier exklusive Doppelhaushälften, die höchsten Wohnkomfort und eine hohe Lebensqualität bieten.
Die stilvollen Häuser befinden sich auf einem Grundstück mit idealer Südausrichtung, die je nach Lage, eine Größe von 244 bis 404 qm umfassen und bieten ausreichend Platz für Ihre individuellen Bedürfnisse und Gestaltungsmöglichkeiten. Die Zuordnung der Grundstücke erfolgt mittels Teilungserklärung gemäß WEG (Wohnungseigentumsgesetz).
Die Häuser werden in massiver Bauweise, entsprechend den Standards eines KfW-Effizienzhauses 55 EE errichtet. Eine Ausführung in KfW 40 EE ist mit Mehrpreis möglich. Der hochwertige Kalksandstein, sowie 3-fach verglaste Fenster, bieten optimalen Wärmeschutz.
Der Entwurf der Häuser folgt einer zeitgemäßen Typologie, die sich von traditionellen oder klassischen Baustilen abhebt. Die Kombination aus klaren Linien und zeitgenössischen Materialien erzeugt ein harmonisches Zusammenspiel und verleiht der Architektur ein äußerst ansprechendes Erscheinungsbild.
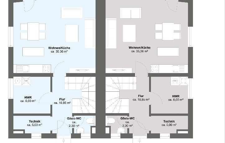
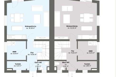
Jede Doppelhaushälfte verfügt über eine Wohnfläche von ca. 122 qm und bietet ausreichend Platz für die ganze Familie. Die Aufteilung der Räume schafft ein angenehmes Wohnambiente und ermöglich es Ihnen, Ihren Wohnraum nach Ihren Wünschen und Vorstellungen zu gestalten.
Das Herzstück im Erdgeschoss, bildet der mit ca. 35 qm großzügige Wohn, Ess- und Kochbereich. Bodentiefe Fenster lassen den Raum lichtdurchfluten und bieten ungestörten Blick in den Garten. Im Technikraum befinden sich alle Hausanschlüsse sowie ein Anschluss für Waschmaschine und Trockner. Ein Gäste-WC hilft, den morgendlichen Andrang zu entzerren.
Ideale Ergänzung dieser Etage, ist, der große Hauswirtschaftsraum, der auch als Kellerersatzraum fungiert und das Erdgeschoss komplettiert.
Um Ihren Komfort und Sicherheit zu gewährleisten, wird im Eingangsbereich eine Briefkastenanlage mit Klingelfeld und Gegensprechanlage installiert.
Im Dachgeschoss stehen drei Wohnräume zur individuellen Nutzung zur Verfügung. Durch die Ausgestaltung mit einem Pultdach, verfügen die Räume mit Ausrichtung zum Garten, über eine Raumhöhe von ca. 2,90 m und vermitteln ein nicht alltägliches Raumgefühl. Ein großes Badezimmer komplettiert diese Ebene.
Für zusätzlichen Komfort und weiterer Abstellmöglichkeit, sorgt das Doppel-Carport mit integriertem Abstellraum.
Diese Doppelhaushälften sind nicht nur ein Ort zum Wohnen, sondern ein Rückzugsort, der mit seinen klaren Linien und der modernen Architektur eine harmonische Verbindung zur Natur schafft. Genießen Sie eine perfekte Kombination aus zeitgemäßem Design und funktionalem Wohnraum, der Ihnen und Ihrer Familie ein behagliches Zuhause bietet. Lassen Sie sich von diesem einzigartigen Angebot begeistern und erleben Sie, was es bedeutet, in einem Haus zu leben, das nicht nur modern, sondern auch einladend und gemütlich ist.
Ihr neues Zuhause wartet auf Sie!
Lage
Poppenbüttel, ein grüner und charmanter Stadtteil im Norden Hamburgs, ist der ideale Ort für all jene, die das urbane Leben genießen und dennoch die Ruhe und Beschaulichkeit einer etablierten Wohngegend schätzen.
Für Familien ist der Stadtteil besonders attraktiv, da es eine Vielzahl hervorragender Schulen und Kindergärten in der Gegend gibt. Eine ruhige und naturnahe Umgebung, kombiniert mit guter Anbindung an die Infrastruktur, bietet Ihnen die perfekte Balance zwischen urbanem Leben und ländlicher Idylle.
Hinzu kommt das vielfältige Freizeitangebot. Egal ob Hockey, Tennis, oder z.B. Tanz – in Poppenbüttel ist für jeden etwas dabei. Die angrenzenden Parks und Moore bieten Raum zur Erholung und das Alsterufer lädt zu herrlich ausgedehnten Spaziergängen, Rad- oder Bootstouren sowie gemütlichen Picknickstunden ein.
Eine große Auswahl an Einkaufsmöglichkeiten, von erstklassigen Supermärkten bis hin zu eleganten Boutiquen im nahegelegenen Alstertal Einkaufszentrum, sind schnell und bequem zu erreichen.
Die Verkehrsanbindung ist ebenfalls vorteilhaft. Die Anbindung an den öffentlichen Nahverkehr ist durch mehrere Buslinien gegeben, die eine schnelle Verbindung zu den umliegenden Stadtteilen und zur Hamburger Innenstadt ermöglichen. Zudem ist die Anbindung an das Autobahnnetz in kurzer Distanz erreichbar, was Pendlern zugutekommt. Die Nähe zur S-Bahn-Station ermöglicht es, schnell und bequem in die Innenstadt zu gelangen, was den Standort besonders attraktiv für Berufstätige macht.
Ausstattung
– massive Bauweise in KfW 55 EE
– Ausführung in KfW 40 EE mit Mehrpreis möglich
– Luft- Wärmepumpe
– Fußbodenheizung
– 3-fach Verglasung
– Gäste-WC
– Balkon
– elektrische Rollladen
– Handtuchheizkörper
– Lan-Verkabelung
– Doppelcarport mit Abstellraum
– individuelle Abgrenzung zur Nachbardoppelhaushälfte
– Garten mit Rollrasen und Stabmattenzaun
– schlüsselfertig
Weiter Details
- Grundstücksfläche: 244 m²
- Zimmer insgesamt: 4
- Anzahl Stellplätze: 2
- Heizungsart: Fußbodenheizung
- Anzahl Etagen: 1,0
- Zusatzinformation zur Lage: Poppenbüttel
- Kaufpreis: 699.000 €
- Anzahl Carport-Stellplätze: 2
- Nutzfläche: 10 m²
- Separate WCs: 1
- Balkone: 1
- Wohneinheiten: 4
- Befeuerung: Luft-Wärmepumpe
- Stellplatzart: Carport
- Baujahr: 2025
- Zustand: Erstbezug
- Immobilie ist verfügbar ab: nach Fertigstellung
















