Zu Verkaufen €599.000 - Etagenwohnung
Objektbeschreibung
Nur wenige Gehminuten entfernt des Lütjensees, in einem einzigartigen Objekt, das modernes Design mit höchstem Wohnkomfort verbindet, entsteht Ihr neues Zuhause!
Dieses lichtdurchflutete Wohnjuwel, begeistert durch seine zeitgemäße Architektur und durchdachte Raumgestaltung, die sowohl Ästhetik als auch Funktionalität in den Vordergrund stellt.
Das gesamte Objekt umfasst drei Wohneinheiten in terrassenförmiger Anordnung der einzelnen Wohnungen zueinander, wodurch viel Privatsphäre geschaffen wird.
Ein besonderes Highlight ist, der barrierearme Zugang zu Ihrer Wohnung über die Tiefgarage, die es Ihnen ermöglicht, das gesamte Objekt bequem und ohne große Einschränkungen zu nutzen. Der Personenaufzug bringt Sie von hier mühelos, direkt vor Ihre Wohnungstür. Hier kann auch Ihr Fahrzeug, auf dem der Wohnung zugeteilten Stellplatz, geparkt werden. Der Tiefgaragenparkplatz kann optional für EUR 29.000.- erworben werden.
Beim Betreten der Wohnung werden Sie von einer durchdachten Raumgestaltung und hochwertigen Materialien empfangen. Große Fensterfronten lassen viel Tageslicht herein und bieten Ihnen einen atemberaubenden Blick über die sanften Wiesen und Felder, die das Grundstück umgeben. Hier können Sie den Alltag hinter sich lassen und die Ruhe der Natur genießen.
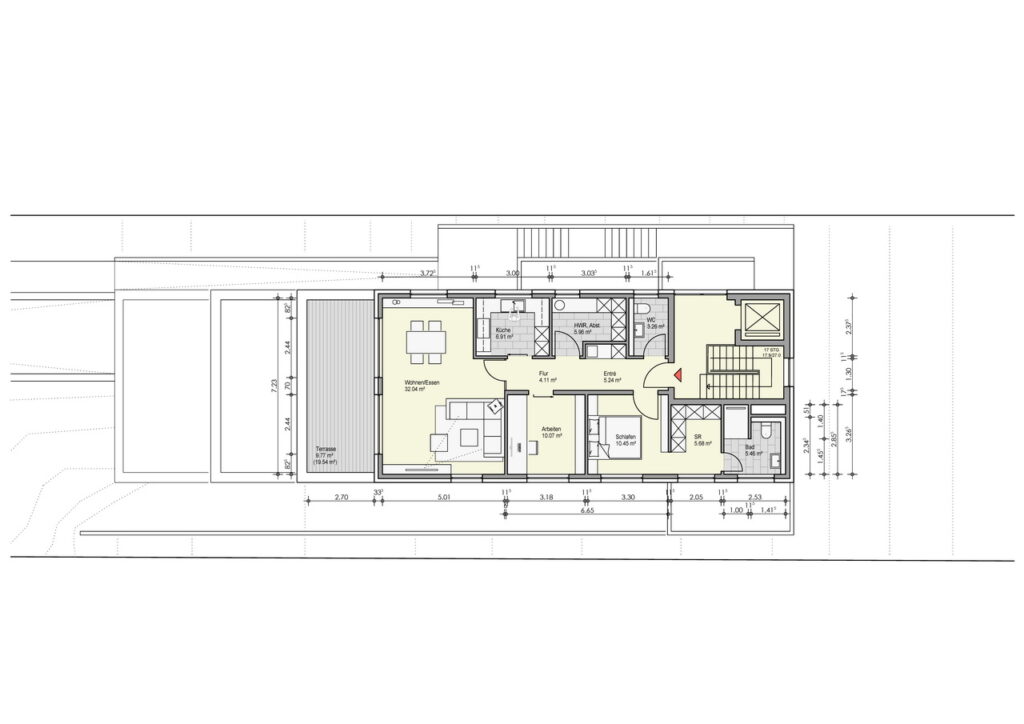
Der geräumige Flur der Dachgeschosswohnung verfügt über einen kleinen Garderobenbereich und führt geradezu in das Herzstück, dem kombinierten Wohn- Essbereich, mit anschließender, ca. 19 qm großer Terrasse.
Die Küche ist auf dem gezeigten Grundrissplan separiert dargestellt, was, den Wünschen des Käufers entsprechend, geändert werden kann.
Das Schlafzimmer verfügt über ein anschließendes Bad en Suite mit bodengleicher Dusche. Ein weiterer Wohnraum steht zur individuellen Nutzung bereit. Waschmaschine, Trockner sowie Vorräte können im HWR-Raum untergebracht werden.
Ein separates Gäste-WC komplettiert diese Wohneinheit, die den Ansprüchen vieler Personengruppen gerecht werden kann. Eine kameragestützte Gegensprechanlage sorgt vor dem Öffnen der Wohnungstür für Ihre Sicherheit. Die elektrischen Außenrolladen bieten Schutz Ihrer Privatsphäre.
Eventuelle Änderungswünsche bezüglich der Raumgestaltung, können noch eingebracht werden.
Die moderne Luft-/Wasser-Wärmepumpe sorgt zudem für eine effiziente und nachhaltige Heizungs- und Warmwasserversorgung, während die integrierte Photovoltaikanlage umweltfreundlichen Strom erzeugt und Ihre Energiekosten senkt. Die gesamte Anlage sowie der Batteriespeicher sind im Keller untergebracht. Ergänzend, ist der Wohnung ein eigenes Kellerabteil zugeordnet.
Der niedrige Energiebedarfswert der Immobilie unterstreicht die hochwertige und zukunftsorientierte Bauausführung.
Dieses Objekt ist nicht nur ein Zuhause, sondern ein Lebensgefühl modern, nachhaltig und komfortabel. Lassen Sie sich von der Kombination aus stilvollem Design und praktischen Annehmlichkeiten begeistern und machen Sie diese Wohnung zu Ihrem neuen Lebensmittelpunkt!
Lage
Lütjensee ist eine malerische Gemeinde im Kreis Stormarn in Schleswig-Holstein, die sich etwa 25 Kilometer nordöstlich von Hamburg befindet. Die Lage ist geprägt von einer idyllischen Landschaft mit Wäldern, Wiesen und dem gleichnamigen Lütjensee, der als Naherholungsgebiet dient. Die Einwohnerstruktur ist überwiegend von Familien und älteren Menschen geprägt, was auf die hohe Lebensqualität und die ruhige Umgebung zurückzuführen ist. Die Gemeinde hat eine Bevölkerung von etwa 2.500 bis 3.000 Einwohnern, die sich durch eine hohe soziale Stabilität auszeichnet.
Die Infrastruktur in Lütjensee ist gut ausgebaut. Es gibt grundlegende Einrichtungen wie Supermärkte, Bäckereien und Restaurants, die den täglichen Bedarf abdecken. Für die medizinische Versorgung stehen Allgemeinärzte und Zahnärzte zur Verfügung. Schulen und Kindergärten sind ebenfalls in der Nähe, was Lütjensee besonders attraktiv für Familien macht.
Die Verkehrsanbindung ist ebenfalls positiv zu bewerten. Lütjensee ist über die Bundesstraße B404 gut an das überregionale Straßennetz angebunden. Die nächstgelegene Bahnstation befindet sich in Ahrensburg, von wo aus regelmäßige Verbindungen nach Hamburg bestehen. Dies macht Lütjensee zu einem beliebten Wohnort im Speckgürtel von Hamburg, da Pendler schnell und bequem in die Stadt gelangen können.
Für Familien bietet Lütjensee einen hohen Nutzwert. Die ruhige Wohnlage, die gute Infrastruktur und die Nähe zur Natur schaffen ein ideales Umfeld für Kinder. Spielplätze, Sportvereine und Freizeitangebote fördern die soziale Interaktion und die Entwicklung der Jüngsten.
Die Naherholungsmöglichkeiten sind vielfältig. Der Lütjensee selbst lädt zu Spaziergängen, Schwimmen und anderen Freizeitaktivitäten ein. Umgebende Wälder und Radwege bieten zusätzlich Möglichkeiten für sportliche Betätigungen und Erholung in der Natur. Insgesamt ist Lütjensee eine attraktive Gemeinde, die sowohl Ruhe als auch eine gute Anbindung an die Metropolregion Hamburg bietet.
Ausstattung
Terrassenwohnanlage mit 3 Wohneinheiten in KfW 40 EE Ausführung
– pro Etage nur eine Wohneinheit
– Luft-/ Wasser- Wärmepumpe mit PV Anlage und Batteriespeicher
– Fußbodenheizung
– Personenaufzug
– barrierearmer Zugang über die Tiefgarge, Aufzug direkt vor die Wohnungstür
– Tiefgaragenstellplatz optional für 29.000.- EUR
– Kellerabteil
– elektrische Außenrolladen
– Video Gegensprechanlage
– Markise
– Großformat Fliesen
– bodengleiche Dusche
– Bad en Suite
– persönliche Grundrissgestaltung noch möglich
– Kauf der gesamten Anlage mit individueller Grundrissgestaltung noch möglich
Weiter Details
- Grundstücksfläche: 828 m²
- Zimmer insgesamt: 3
- Heizungsart: Fußbodenheizung
- Anzahl Etagen: 3,0
- Kaufpreis: 599.000 €
- Anzahl Garagenstellplätze: 1
- Nutzfläche: 6 m²
- Separate WCs: 1
- Terrassen: 1
- Vermietbare Fläche: 99,5 m²
- Befeuerung: Luft-Wärmepumpe
- Stellplatzart: Garage
- Baujahr: 2025
- Zustand: Erstbezug
- Immobilie ist verfügbar ab: nach Fertigstellung
















