Verkauft Auf Anfrage - Einfamilienhaus
Objektbeschreibung
Das Interesse an Wohnen auf einer Ebene, erfreut sich seit vielen Jahren an stetig wachsender Nachfrage. Interessenten, aus allen Altersgruppen, haben Gefallen an diesem Wohnkonzept gefunden, da dieses über viele Jahre hinweg, den eigenen Bedürfnissen gerecht werden kann.
Der zum Verkauf angebotene Bungalow wurde 2015 in massiver Bauweise errichtet und vereint, komfortables Wohnen auf 110 qm zu ebener Erde, mit geradlinigem und schnörkellosen Baustil.
Eingebettet in die Seester Marsch und mit beeindruckendem Ausblick auf diese, bietet er Ihnen täglich ein Stück Natur direkt vor Ihrer Haustür.
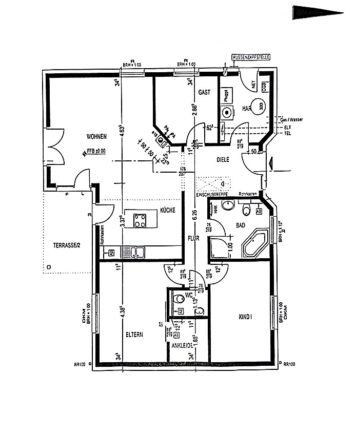
Der Bungalow verfügt über vier Wohnräume. Herzstück des Hauses, ist, der offen gestaltete Wohn- Ess- und Küchenbereich. Der Eingangsbereich mit Flur ist geräumig und verteilt in alle Räume.
Von vielen gewünscht, hier vorhanden, das Schlafzimmer mit begehbarem Kleiderschrank, der mittels Glasschiebetüre zu öffnen und zu schließen ist.
Zwei weitere Wohnräume stehen zur individuellen Nutzung bereit.
Das Badezimmer ist mit Wanne und Dusche ausgestattet und verfügt über Fußbodenheizung und einen Handtuchheizkörper. Es wird von einem separaten Gäste-WC ergänzt.
Im Hauswirtschaftsraum ist die Gasbrennwerttherme, der Warmwasserspeicher, der über Solarthermie beheizt wird, sowie die Be- und Entlüftungsanlage mit Wärmerückgewinnung, untergebracht. Anschluss für Waschmaschine und Trockner und weitere Lagermöglichkeiten, sind hier ebenfalls zu finden. Idealerweise verfügt dieser Raum über einen Außenzugang direkt zu Ihrem Auto.
Der Bungalow verfügt über einen starken Vollwärmeschutz und 3-fach verglasten Fenstern. Für die Stabilität sorgt, lt. Unterlagen, eine Pfahlgründung. Die Decke zum Spitzboden, der auch Kellerersatzraum ist, ist mit Mineralwolle gedämmt. Um diesen noch großräumiger nutzen zu können, sollte dieser komplett, z. B. mit OSB Platten belegt werden. Die Sparren des Dachs sind mit einer Unterspannbahn verkleidet. Investitionen für Fußbodenleisten und die Ausarbeitung der Übergänge zwischen Wänden und Decken sind einzuplanen. Die Steine der Zufahrt müssen aufgenommen werden und mit Gefälle neu eingesetzt werden.
Lassen Sie sich von der Lage und der Raumgestaltung überzeugen und gestalten Sie hier Ihr neues Zuhause.
Lage
Zur Gemeinde Seester gehören die Ortsteile Seester, Seesteraudeich, Klein Sonnendeich, Groß Sonnendeich, Kurzenmoor und Finkenburg.
Mittelpunkt der Gemeinde, ist der Ortsteil Seester mit seiner 1428 erbauten Kirche und den umliegenden historischen Gebäuden. Hier finden sich auch die meisten öffentlichen Gebäude und Plätze wie Gemeinderäume, Grundschule, Kindergarten, Feuerwehr, Kirche, Friedhof, Sportplatz und Turnhalle. Im Ortskern, auf einer ehemals landwirtschaftlich genutzten Fläche nordwestlich der Dorfstraße, ist sind die Neubaugebiete Zur Rönnwettern und Vor dem Reth entstanden.
Wie viele Gemeinden des äußeren Speckgürtels von Hamburg, erfreut sich Seester über regen Zuzug und Beliebtheit bei Jung und Alt.
Eingebettet zwischen den Flüssen Krückau und Pinnau, die hier unweit in die Elbe münden, liegt Seester inmitten der Seestermüher Marsch. Dank seiner Wasserlage direkt an der Krückau kommen hier neben Segel- und Motorbootbegeisterten auch Kanu- und Kajakfahrer sowie Stand-Up-Paddeler auf Ihre Kosten.
Seester hat sich in den letzten Jahren mehr und mehr zu einem Ausflugstipp gerade für Radfahrer, Wanderer und Naturliebhaber entwickelt. Die Weite des Außendeichgeländes aber auch Wege innerhalb des Ortes laden zum Spazierengehen und Radfahren ein.
Seester liegt im Nordwesten des Kreises Pinneberg. Direkte Nachbargemeinden sind Seestermühe und Neuendeich. Ebenfalls zum Gemeindegebiet gehört die unbewohnte Elbinsel Pagensand.
In der Kindertagesstätte Unter dem Regenbogen ist für die ganz kleinen Mitbürger*Innen gesorgt. Die Grundschule wird zusammen mit der Nachbargemeinde Seestermühe betrieben.
Die öffentliche Buslinie sorgt für den Anschluss nach Elmshorn. Hier gibt es ein breit gefächertes Angebot an weiterführenden Schulen und eine zügige Bahn Anbindung nach Hamburg.
Ausstattung
– naturnahes Wohnen zu ebener Erde
– Gasbrennwerttherme
– Solarthermie
– Be- und Entlüftungsanlage mit Wärmerückgewinnung
– 3-fach Verglasung
– Vollwärmeschutz
– 4 Wohnräume
– Gäste-WC und Hauswirtschaftsraum
– Geräteschuppen
Weiter Details
- Grundstücksfläche: 782 m²
- Zimmer insgesamt: 4
- Anzahl Stellplätze: 2
- Anzahl Etagen: 1,0
- Courtage: 2.95 %
- Anzahl Außenstellplätze: 2
- Nutzfläche: 6 m²
- Wohneinheiten: 1
- Befeuerung: Gas
- Stellplatzart: Freiplatz
- Baujahr: 2015
- Immobilie ist verfügbar ab: nach Vereinbarung




























