Unsere Referenzen Auf Anfrage - Reihenmittelhaus
Objektbeschreibung
Mit dem Ziel, neuen Wohnraum entstehen zu lassen und zu fördern, wurden unter Leitung und nach den Plänen des damaligen, ersten Baudirektors von Hamburg a. D. 90 Reihenhaus-Eigenheime errichtet.
Entsprechend der jeweiligen Ausstattung und Lage wurden die Häuser in unterschiedliche Typklassen eingeteilt.
Bei der hier zu veräußernden Immobilie handelt es sich den Plänen entsprechend um den Haustyp A, ein Mittelreihenhaus.
Den Eigentümern ist es gelungen, die Bedürfnisse der Familie nach zwei separaten Kinderzimmern und einem Arbeitszimmer selbst auf kleinem Wohnraum bestens umzusetzen.
Nach dem Kauf der Immobilie in 2011 wurde auf den substantiellen Werterhalt der Immobilie geachtet. Alle Leitungen, wie Wasser-, Strom- und Elektroleitungen, sowie der Sicherungskasten wurden erneuert.
Die Gasbrennwerttherme, die Heizungsrohre sowie die Heizkörper wurden ebenfalls 2011 ausgetauscht.
Für die Immobilie liegt eine aktuelle Dichtheitsprüfung vor. Schadhafte Rohre wurden ausgetauscht und die alten Tonrohre durch neue ersetzt.
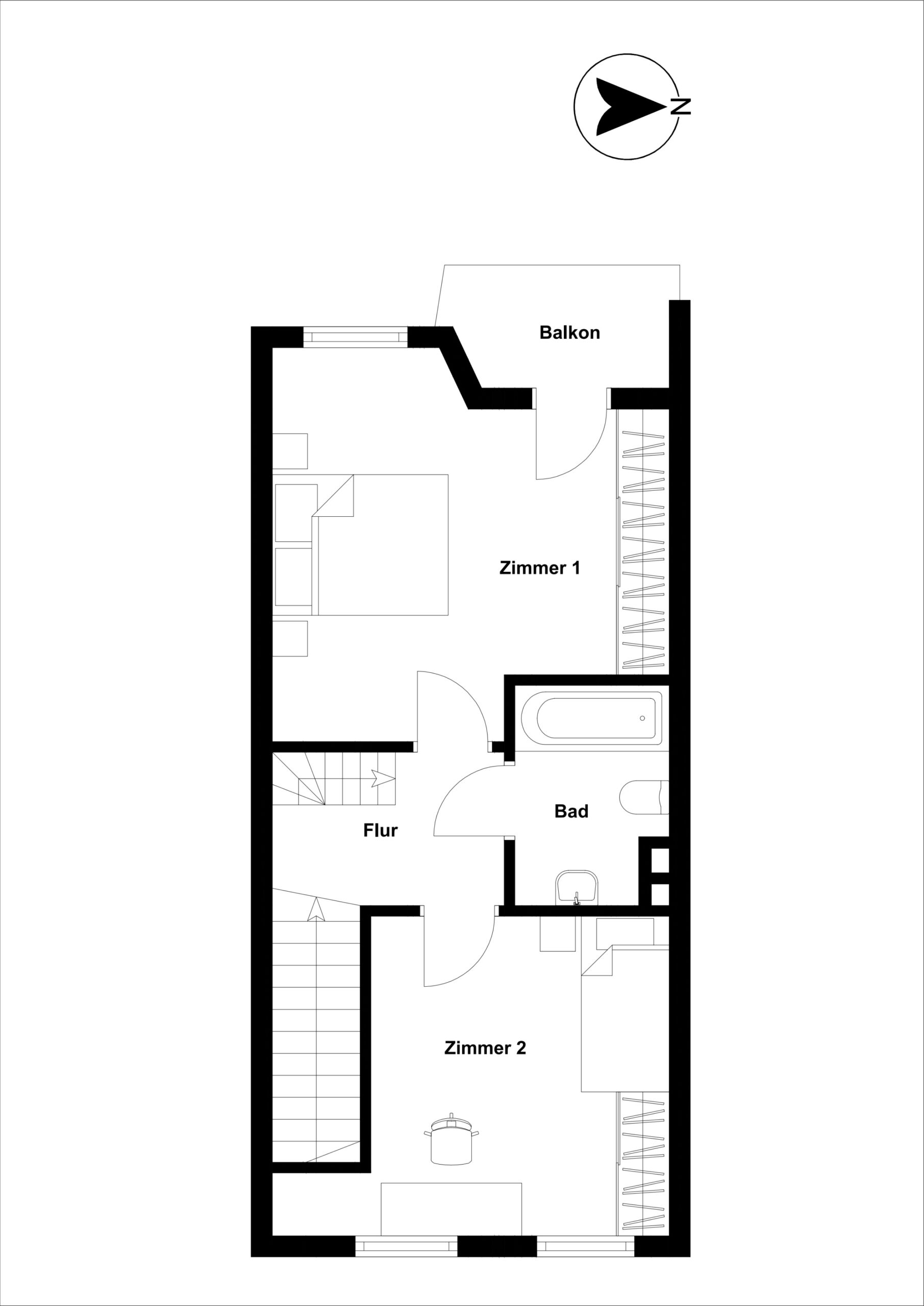
2017 erfolgte der wohnraumgleiche Ausbau des Dachgeschosses mit Mineralwolldämmung, Dampfbremse und Gipskartonplatten. Es entstanden zwei Räume und ein Duschbad.
Diese Fläche von ca. 20 qm findet sich in der Nutzfläche wieder.
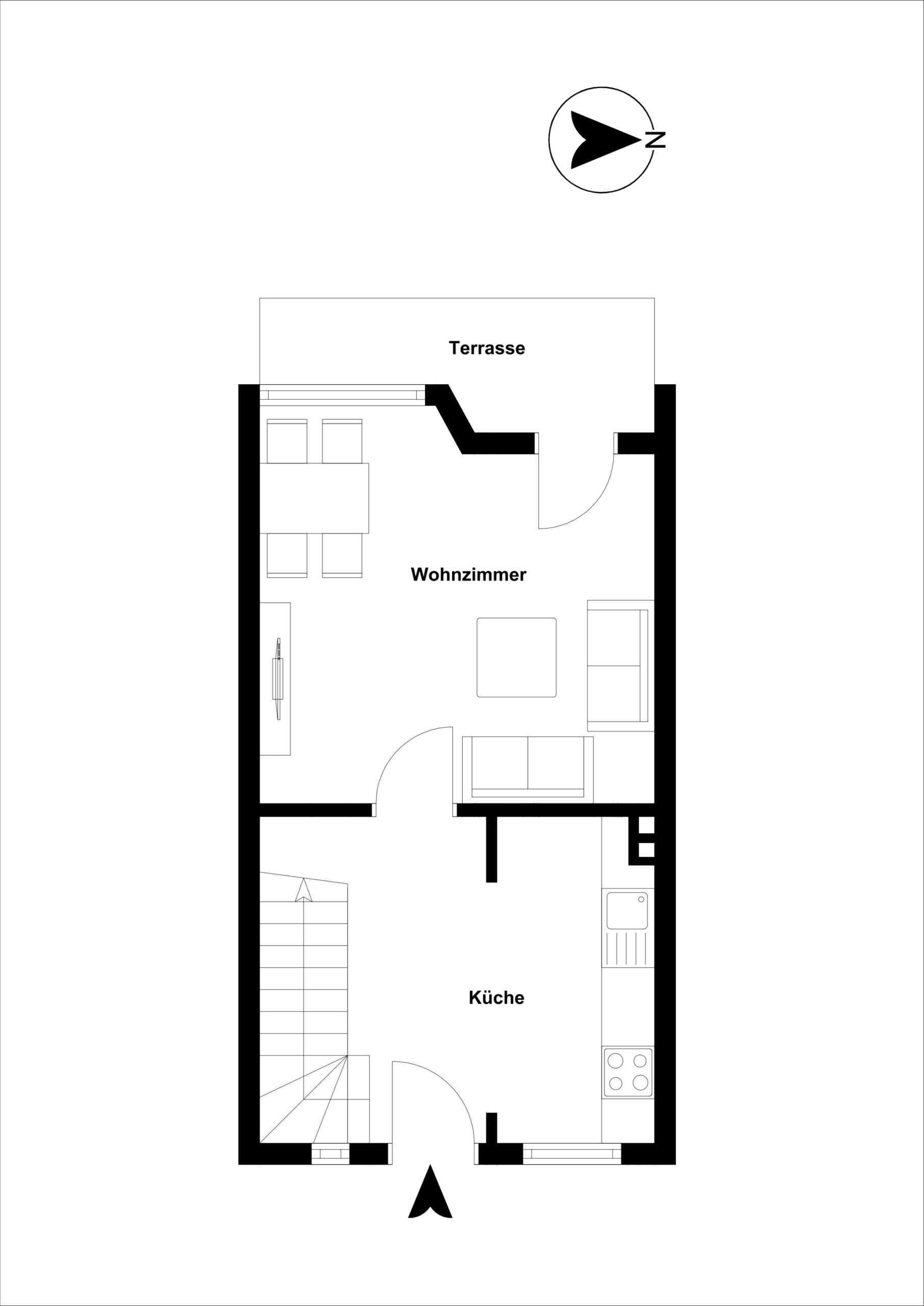
Um einen großzügigeren Eingangsbereich zu schaffen, wurde im Erdgeschoss die Wand zur Küche entfernt. Dieser Bereich geht nun offen in das angrenzende Wohnzimmer über. Hier ist auch der Zugang auf die vom Balkon überdachte Terrasse und den Garten möglich. Der Teilkeller ist ebenfalls über das Erdgeschoss zugänglich.
Im Obergeschoss stehen das Schlafzimmer, das Arbeitszimmer sowie das Wannenbad zur Verfügung.
Die Fenster wurden vermutlich in den 80-er Jahren ausgetauscht, sollten aber zur energetischen Verbesserung des Hauses sowie Renovierungen für Bodenbeläge und Türen etc. finanziell mit eingeplant werden.
Gerne stehe ich Ihnen für ein ausführliches Gespräch telefonisch zur Verfügung.
Lage
Rahlstedt ist ein Hamburger Stadtteil im Bezirk Wandsbek, der mit seinem Mix aus gepflegten
Einfamilienhäusern, den berühmten Fin-de-Siècle-Villen und einem Anteil an sozialgefördertem Wohnungsbau einen interessanten und kleinstädtischen Charme versprüht.
Kein anderer Stadtteil verzeichnet mehr Neubewohner als Rahlstedt und mit seinen ca. 90.000 Einwohnern erreicht dieser fast Großstadtformat.
Rahlstedt punktet vor allem bei jungen Familien durch eine ausgereifte Infrastruktur mit Schulen, Kitas und Ärzten sowie zahlreichen Vereinen und diversen kulturellen Veranstaltungen.
Seine direkte Nähe zur Natur, wie dem Naturschutzgebiet Höltigbaum, und die gute Anbindung an die Hamburger City durch die U-Bahn-Linie 1, der RB 81 und den Buslinien des HVV unterstreichen die große Nachfrage.
Ausstattung
– neue Wasser- Elektro- und Stromleitungen
– Gasbrennwerttherme von Wolf aus 2011
– 2 Bäder
– Schornsteinverkleidung aus 2024
– aktuelle Dichtheitsprüfung und erneuerte Abflussrohre
Weiter Details
- Grundstücksfläche: 137 m²
- Zimmer insgesamt: 5
- Nutzfläche: 34 m²
- Befeuerung: Gas
- Baujahr: 1958
- Immobilie ist verfügbar ab: nach Vereinbarung












































